PLUGA HOMES
La innovación en casas modulares
Nuestro Compromiso: Construir un Futuro Sostenible
En Desarrollo Sostenible, nuestra misión es clara: ofrecer soluciones habitacionales que beneficien tanto a nuestros clientes como al planeta. Por ello, integramos las Pluga Homes, una solución que redefine el concepto de vivienda modular combinando tecnología de fabricación industrializada con una profunda conciencia ecológica.
Las Pluga Homes son la respuesta para quienes buscan una vivienda de alta calidad, económica y que responda con urgencia a la necesidad de vivir de forma más sostenible.
Los Pilares de la Eficiencia Pluga
Las Pluga Homes son más que casas modulares; son una solución práctica y rápida de instalar, construidas íntegramente en fábrica para garantizar la máxima calidad y la menor huella ambiental.
La sostenibilidad es la clave del proceso. Al fabricarse en un entorno industrializado, se logra una minimización drástica de residuos de obra y se optimiza el uso de materiales.
Gracias a la modularidad, los cimientos se preparan mientras su casa se construye en la fábrica. Esto nos permite transportar los módulos e instalarlos en obra en tan solo una semana.
Un producto más económico y asequible. Acceder a una vivienda de diseño, sostenible y de alta eficiencia energética nunca fue tan sencillo.
Modulares PLUGA
Modelos disponibles
PLUGA T1- Planta Baja
Vivienda en planta baja, compuesta por cocina americana y salón, un dormitorio y un baño, con un total de 63,6m² de área de construcción.
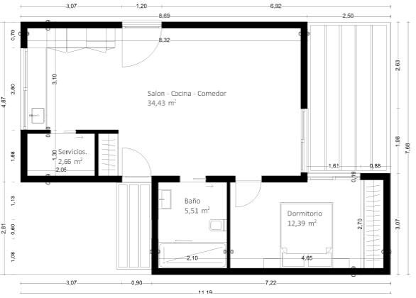
PLUGA T2- Planta Baja + 1 Piso- Piso 0
Vivienda de dos pisos, compuesta en el primer piso por una cocina americana y salón, un baño de servicio y una lavandería. Con un total de 63,40m² de área de construcción.
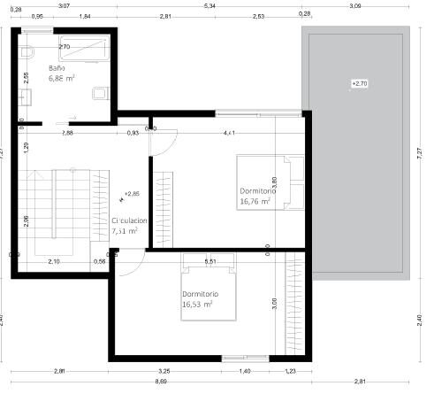
PLUGA T2- Planta Baja + 1 Piso – Piso 1
En el piso superior, esta vivienda cuenta con dos dormitorios y un baño común. Con un total de 63,80m² de área de construcción.
PLUGA T2- Planta Baja
Vivienda en planta baja, compuesta por cocina americana y salón, dos dormitorios, dos baños y una lavandería. Con un total de 104,85m² de área de construcción.







